缺氧池至厌氧池污泥回流泵 穿墙泵QHB蓝宝石环保





正确安装使用是该泵长久,正常运转的基本保证
回流泵采用自动耦合安装系统,不用任何机械拆卸便可迅速替身泵进行检查,方便快捷
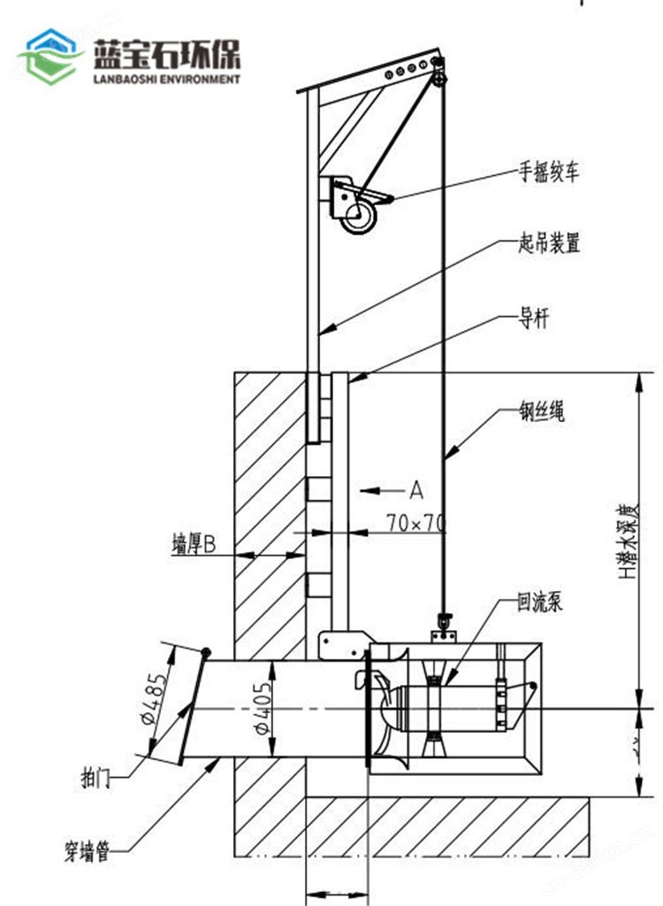
本设备出穿墙管需预埋外,导杆,起吊杆均用膨胀螺栓与池体连接,不需预埋件。
污泥回流泵安装系统
回流泵安装系统主要由手拉葫芦,起吊架,吊架座,起吊环链,导杆,穿墙管,拍门组成
安装系统可在无需排出池中污水的情况下,能快速安装和拆卸回流泵(主机)穿墙管一般采用二次烧注的方法固定在墙中,吊架座,导杆采用膨胀螺栓固定,无需预留孔。为方便安装与维护,防止葫芦锈蚀损坏,回流泵安装系统起吊用的起吊链与手拉葫芦可快速装拆。一般每台潜水回流泵配一根安装导杆、手拉葫芦、吊链等,而起吊架可以多台共用,每套设备的起吊架底座要配齐
消化液潜水回流泵主要由主机、安装系统及电控设备组成。主机主要由叶轮、潜水电机、倒流筒体、导向滑轮等组成。叶轮直接装在电机轴上,潜水电机则固定在导流筒体内。















所有评论仅代表网友意见,与本站立场无关。