污水再循环设备潜水回流泵QHB1.5/6蓝宝石
1、设备名称 :不锈钢水下混合液回流泵QHB1.5/6



2、设备型号: QHB1.5/6
1.5kw,6级电机,叶轮直径260mm。
3、主要技术参数:
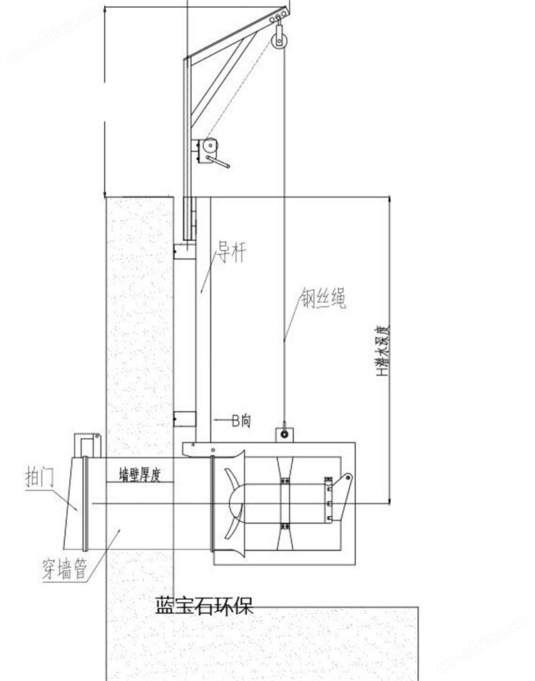
污泥回流泵、穿墙泵构造及工作原理:
1、不锈钢水下混合液回流泵QHB系列由叶轮、潜水电机、导流罩、穿墙管、拍门、安装提升导杆、起吊钢绳、水下电缆、起吊架和手摇升降装置、角度转向装置、就地控制柜等组成。
2、不锈钢水下混合液回流泵QHB系列转动平衡自如,无卡死、停滞、振动等现象;
3、不锈钢水下混合液回流泵QHB系列作密封气压实验,实验压力为0.3MPa,历时5分钟无泄漏现象;
4、采用双机械密封结构和唇形密封组成动密封系统,机械密封保证在25000小时内可靠运行而不需更换;
5 在全浸没和潜水电机露出液面的条件下能连续工作,同时能保证在间隙运行和长期停止运行的情况下,一经开机仍能正常运行。
6 引出电缆采用GB5013.2中YZW型橡套软电缆或性能相同的其它电缆,单台标准配置长度10m,电缆密封头采用特殊硫化处理,以防电缆外皮破损,渗水至电机;
7 其表面光亮,无污损、碰伤、裂痕等现象;
8 油室内有足够的空间来容纳因温差引起的膨胀,并设有密封泄漏保护装置;
9 引出电缆中双色线(黄/绿)规定为接地线,联接可靠。接地标志明显,在使用期内不易磨灭;
10 叶轮及转子采用动平衡试验,平衡精度为G6.3;
11 定子绕组内及上下轴承位置设有热保护开关,定子腔内设有密封泄漏保护装置。
12 安装导杆能保证设备自由转动、升降、调节各种角度,提升和安装搅拌机也不必要把池子放空。














所有评论仅代表网友意见,与本站立场无关。