2025年09月19日 08:37:26 来源:东莞市宇匠数控设备有限公司 >> 进入该公司展台 阅读量:5
例:毛坯为150㎜×70㎜×20㎜块料,要求铣出如图2-25所示的椭球面,工件材料为蜡块。

1.根据图样要求、毛坯及前道工序加工情况,确定工艺方案及加工路线
1)以底面为主要定位基准,两侧用压板压紧,固定于铣床工作台上。
2)加工路线
Y方向以行距小于球头铣刀逐步行切形成椭球形成。
2.选择机床设备
根据零件图样要求,选用经济型数控铣床即可达到要求。故选用华中Ⅰ型(ZJK7532A型)数控钻铣床。
3.选择刀具
球头铣刀大小f6mm。
4.确定切削用量
切削用量的具体数值应根据该机床性能、相关的手册并结合实际经验确定,详见加工程序。
5.确定工件坐标系和对刀点
在XOY平面内确定以工件中心为工件原点,Z方向以工件表面为工件原点,建立工件坐标系,如图2-25所示。
采用手动对刀方法把0点作为对刀点。
6.编写程序(用于华中I型铣床)
按该机床规定的指令代码和程序段格式,把加工零件的全部工艺过程编写成程序清单。该工件的加工程序如下:
%8005(用行切法加工椭园台块,X,Y按行距增量进给)
#10=100 ;毛坯X方向长度
#11=70 ;毛坯Y方向长度
#12=50 ;椭圆长轴
#13=20 ;椭圆短轴
#14=10 ;椭园台高度
#15=2 ;行距步长
G92 X0 Y0 Z[#13+20]
G90G00 X[#10/2] Y[#11/2] M03
G01 Z0
X[-#10/2] Y[#11/2]
G17G01 X[-#10/2] Y[-#11/2]
X[#10/2]
Y[#11/2]
#0=#10/2
#1=-#0
#2=#13-#14
#5=#12*SQRT[1-#2*#2/#13/#13]
G01 Z[#14]
WHILE #0 GE #1
IF ABS[#0] LT #5
#3=#13*SQRT[1-#0*#0/[#12*#12]]
IF #3 GT #2
#4=SQRT[#3*#3-#2*#2]
G01 Y[#4] F400
G19 G03 Y[-#4] J[-#4] K[-#2]
ENDIF
ENDIF
G01 Y[-#11/2] F400
#0=#0-#15
G01 X[#0]
IF ABS[#0] LT #5
#3=#13*SQRT[1-#0*#0/[#12*#12]]
IF #3 GT #2
#4=SQRT[#3*#3-#2*#2]
G01 Y[-#4] F400
G19 G02 Y[#4] J[#4] K[-#2]
ENDIF
ENDIF
G01 Y[#11/2] F1500
#0=#0-#15
G01 X[#0]
ENDW
G00 Z[#13+20] M05
G00 X0 Y0
M02
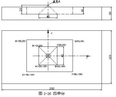
例:毛坯200㎜×100㎜×30㎜块料,要求铣出如图2-26所示的四棱台,工件材料为蜡块。

掌握数控编程基本方法并在此基础上有更大的提高,必须进行大量的编程练习和实际操作,在实践中积累丰富的经验。编程前,要做大量的准备工作,如:
了解数控机床的性能和规格;
熟悉数控系统的功能及操作;
加强工艺、刀具和夹具知识的学习,掌握工艺编制技术,合理选择刀具、夹具及切削用量等,将工艺等知识融入程序,提高程序的质量;
养成良好的编程习惯和风格,如程序中要使用程序段号、字与字之间要有空格、多写注释语句等,使程序清晰,便于阅读和修改;
编程时尽量使用分支语句、主程序及宏功能指令,以减少主程序的长度。
具体加工工艺和装夹方法和其余各题一样,这里略。
程序如下:(用于华中I型铣床)
%1978
#10=100 ;底平面EF的长度,可根据加工要求任定
#0=#10/2 ;起刀点的横座标(动点)
#100=20 ;C点的横座标
#1=20 ;C点和G点的纵向距离
#11=70 ;FG的长度
#20=-#10/2 ;E点的横座标
#15=3 ;步长
#4=16 ;棱台高
#5=3 ;棱台底面相对于Z=0平面的高度
#6=20 ;C点的纵座标
G92 X0 Y0 Z[#4+#5+2] ;MDI对刀点Z向距毛坯上表面距离
G00 X0 Y0
G00 Z[#4+10] M03
G01 X[#0] Y[#11/2] Z[#5] ;到G点
WHILE #0 GE #20 ;铣棱台所在的凹槽
IF ABS[#0] LE #100
G01 Y[#1] F100
X0 Y0 Z[#4+#5]
X[#0] Y[-#1] Z[#5]
Y[-#11/2]
ENDIF
G01 Y[-#11/2] F100
#0=#0-#15
G01 X[#0]
IF ABS[#0] le #100
G01 Y[-#1]
X0 Y0 Z[#4+#5]
X[#0] Y[#1] Z[#5]
Y[#11/2]
ENDIF
G01 Y[#11/2]
#0=#0-#15
G01 X[#0]
ENDW
G01 Z[#4+20]
X0 Y0
X[#1] Y[#1] Z[#5]
WHILE ABS[#6] LE #1 ;铣棱台斜面
#6=#6-#15
G01 Y[#6]
X0 Y0 Z[#4+#5]
X[-#1] Y[-#6] Z[#5]
G01 Y[-#6+#15]
X0 Y0 Z[#4+#5]
X[#1] Y[#6] Z[#5]
ENDW
G00 Z[#4+20]
G00 X0 Y0
M05
M30